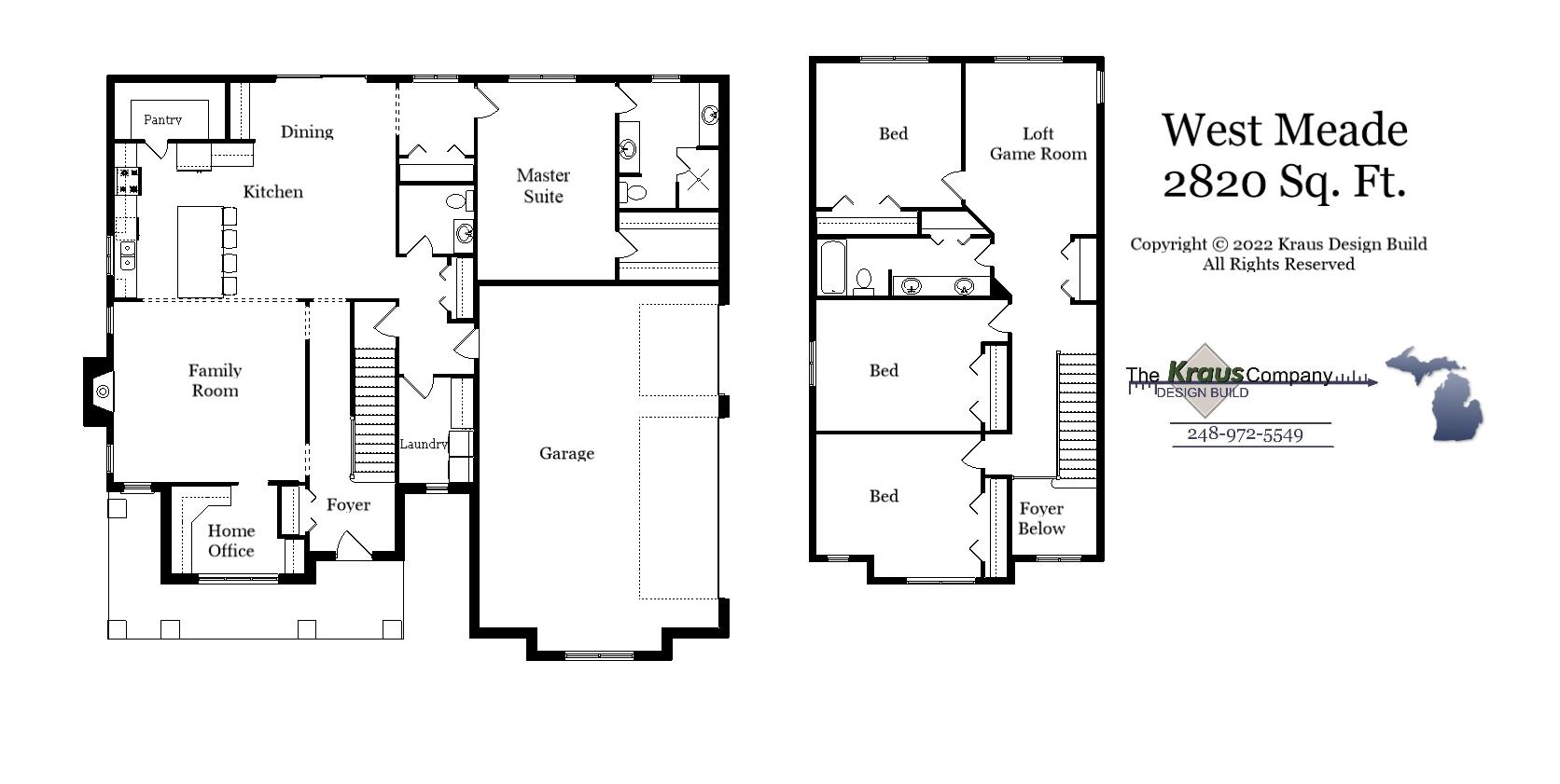
West Meade

Floor Plan Blueprint
Back to Search
Download PDF
Square Feet 2,820 ft²
Bedrooms 4
Full Bathrooms 2
Half Bathrooms 1
Plan Type
Primary Bedroom Location First Floor
Multi-Generation Plan No

Pricing

Upon Request

Description

The West Meade is a customizable home plan that offers 4 bedrooms, 2.5 bathrooms, and an attached 3-car garage in a 1.5-story, 2,820 sq. ft. design. You'll love the gourmet island kitchen and dining area, the spacious 2-story great room, and the home office (study), in addition to the luxury primary suite with a walk-in closet and private bathroom. The plan also includes a laundry room, on the first floor. The second floor features 3 large bedrooms, a game room loft area, and 1 full bathroom. All floor plans and elevations are fully customizable to suit your needs and preferences. Contact us today to learn more about this stunning home plan and discuss your ideas.